Stanovanje 2S+DB za prodajo, Rogoznica, 268 000 €

Ekskluzivno stanovanje v sodobni novogradnji z razgledom na morje – Primošten!

Luksuzno stanovanje v sodobni novogradnji, ki se nahaja na mirni lokaciji nad Primoštenom, le 1400 metrov od morja in čudovitih plaž.

Primošten, slikoviti dalmatinski dragulj med Trogirjem in Šibenikom, že vrsto let očara obiskovalce s svojo pristno lepoto, kristalno čistim morjem in sproščenim mediteranskim načinom življenja.

Stavba obsega le sedem luksuznih stanovanjskih enot, kar zagotavlja zasebnost in mir, medtem ko povišana lega omogoča čudovit odprt pogled na morje.

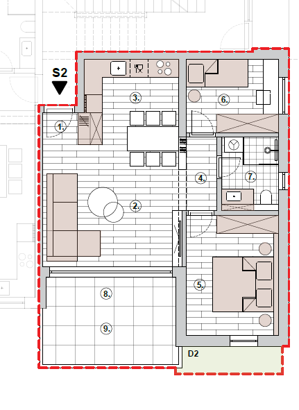
Stanovanje S2 se nahaja v pritličju in obsega 66,94 m2 skrbno zasnovanega bivalnega prostora. Sodobna razporeditev vključuje vhodni del, prostorno dnevno sobo, povezano s kuhinjo in jedilnico v konceptu odprtega prostora, z izhodom na teraso, ki je idealna za sprostitev, dve udobni spalnici, predsobo in elegantno urejeno kopalnico.

Posebna pozornost je namenjena kakovosti gradnje in opreme, kar dodatno poudarja ekskluzivnost celotnega projekta: talno gretje v vseh stanovanjih, električne rolete, mreže proti komarjem v spalnicah, aluminijasta okna visoke kakovosti, keramika in parket prve kakovosti, protivlomna vhodna vrata, garažna vrata priznanega proizvajalca Hormann, polnilnica za električna vozila ob vsakem parkirnem mestu, jacuzzi v pritličnih stanovanjih in penthousih.

Vsako stanovanje ima zagotovljeno lastno parkirno mesto, bodisi v garaži ali na zunanjem parkirišču.

Pričakovani zaključek gradnje in vselitev je december 2026.

Stanovanja na voljo za prodajo:

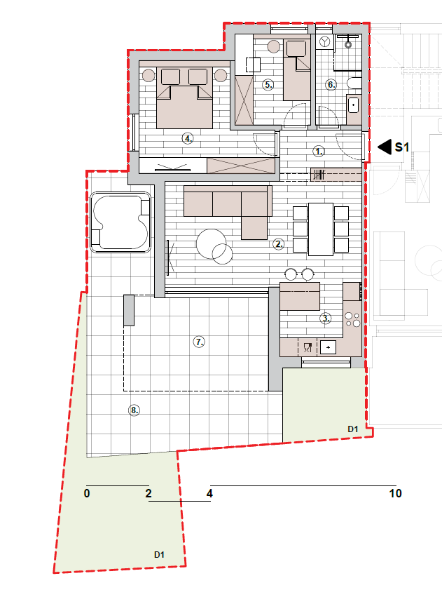
S1, pritličje: 82,17 m2, 2 spalnici, terasa, dvorišče. Cena: 411.000 €.
S2, pritličje: 66,94 m2, 2 spalnici, terasa, dvorišče. Cena: 268.000 €.
S3, 1. nadstropje: 73,45 m2, 2 spalnici, terasa. Cena: 331.000 €.
S4, 1. nadstropje: 66,64 m2, 2 spalnici, loža, terasa. Cena: 286.000 €.
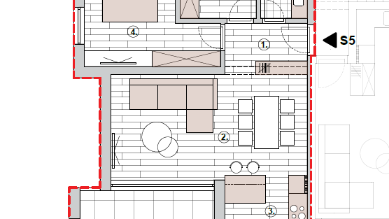
S5, 2. nadstropje: 73,45 m2, 2 spalnici, terasa. Cena: 352.000 €.
S6, 2. nadstropje: 71,79 m2, 2 spalnici, terasa. Cena: 330.000 €.
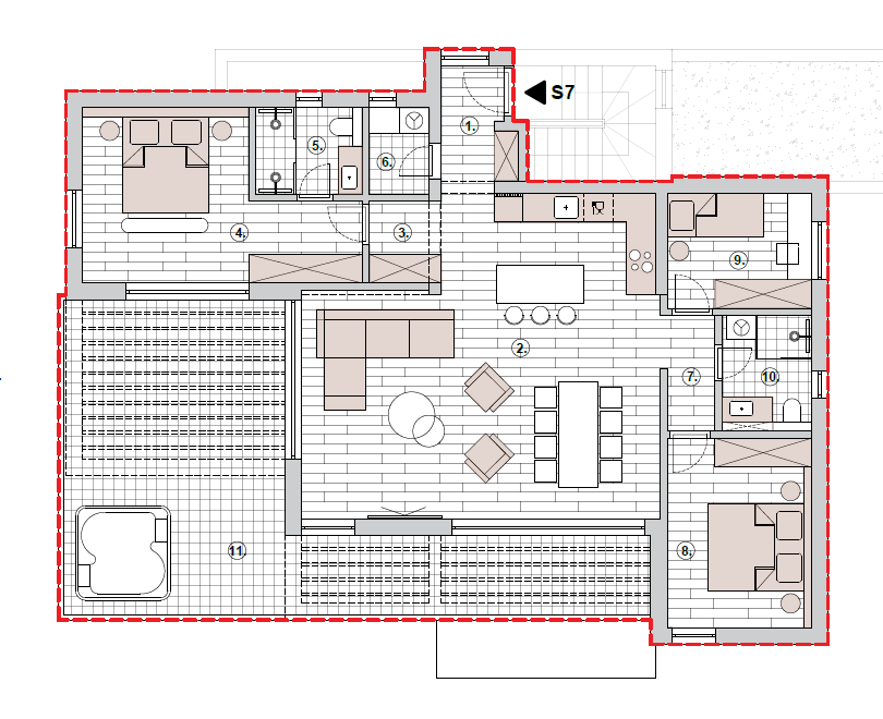
S7, penthouse: 123,70 m2, 3 spalnice, terasa. Cena: 681.000 €.

Osnovni podatki

  • Šifra stavbeiro-2872
  • Prodajna cena268 000 € (2 019 246 kn)
  • LokacijaRogoznica
  • Kvadratura65,00 m2
  • Tip stanovanja2S+DB
  • Energetski razredV gradnji
  • Število spalnic2
  • Število kopalnic1
  • Nadstropje opisnoPritličje
  • Število etažEnoetažni
  • Nadstropij v stavbi3
  • Vrsta stavbeStanovanjski
  • Leto izdelave2026
  • Oddaljenost od morja1 400 m
  • Oddaljenost od centra1 500 m
  • Število parkirnih mest1

Različne lastnosti

  • Loggia
  • Terasa
  • Vrt
  • Protivlomna vrata
  • Opremljen vrt
  • Pogled na morje

Ogrevanje

  • Klima
  • Talno gretje

Inštalacije

  • Elektrika
  • Voda
  • Kanalizacija

Stanje stavbe

  • Novogradnja

Parkirni prostor

  • Garaža

Možnost najema

  • Klimatizirano

V bližini

  • Jjavna plaža
  • Center poravnava

Nepremičnina na zemljevidu

Kontakt zastopnika

Toma Tadin

Ta spletna stran zapusti "piškotke" v računalniku za namene navigacije vsebine in anonimne zbirke statističnih podatkov o uporabi. Z uporabo te spletne strani potrjujete, da se strinjate s tem.