Stanovanje 3S+DB za prodajo, Rogoznica, 790 000 €

Ekskluzivni penthouse v novogradnji v Primoštenu – pogled na morje, garaža, blizu centra!

Na prodajo je stanovanje v sodobni novogradnji, na izjemno privlačni lokaciji v Primoštenu, le 750 metrov zračne razdalje od morja, plaže in samega središča kraja. Letališče Split je oddaljeno 32 km.

Ta sodobni projekt je zasnovan za vrhunsko raven udobja, ne glede na to, ali iščete dom za celoletno bivanje, ekskluzivno nepremičnino za počitnice ali kakovostno naložbo za turistični najem.

Objekt obsega več luksuznih stanovanj, vsakemu stanovanju pripada lastno garažno parkirno mesto in shramba.

Objekt je opremljen z dvigalom, ki povezuje vsa nadstropja, vključno z garažo.

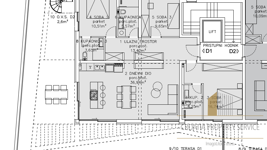
Penthouse D1, površine 130,23 m2, ki se nahaja v tretjem nadstropju moderne stavbe, nudi izjemno prijetno in prefinjeno bivalno okolje. Stanovanje sestavljajo eleganten vhodni prostor, trije spalni prostori ter tri sodobne kopalnice, od katerih je ena en suite.

Zračen odprt koncept dnevne sobe, kuhinje in jedilnice ustvarja harmoničen prostor, idealen za vsakodnevno življenje in druženje. Posebna prednost tega penthousa je prostorna polkrita terasa velikosti 98 m2, s katere se odpira čudovit pogled na morje.

Stanovanju pripada eno garažno parkirno mesto, eno zunanjo parkirno mesto ter dodatna shramba, kar še dodatno povečuje udobje in funkcionalnost te izjemne ponudbe.

Vrhunska oprema in materiali
- Aluminijasta stavbna pohištvena z termoizolacijskim steklom in električnimi roletami
- Talno ogrevanje v kopalnicah
- Protivlomna in protipožarna vhodna vrata
- Protizdrsna keramika v stanovanjih in na terasah (možnost izbire dizajna)
- Klimatizacija vseh prostorov – sistem skrit v spuščenih stropih
- LED osvetlitev v notranjosti in zunanjosti
- Termo fasada (kamena volna 10 cm)
- Priprava za električne polnilnice na vseh garažnih mestih

Predviden zaključek del in možnost vselitve je 1. julij 2026.

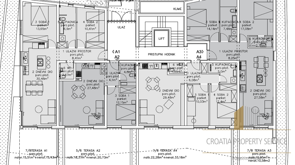
Stanovanja na voljo za prodajo:

Pritličje:
A1: 81,96 m2 neto, 2 spalna prostora, kopalnica, wc, terasa. Cena: 375.000 €
A2: 60,67 m2 neto, 1 spalni prostor, kopalnica, terasa. Cena: 265.000 €
A3: 83,10 m2 neto, 2 spalna prostora, kopalnica, wc, terasa. Cena: 375.000 €
A4: 82,36 m2 neto, 2 spalna prostora, kopalnica, wc, terasa. Cena: 330.000 €

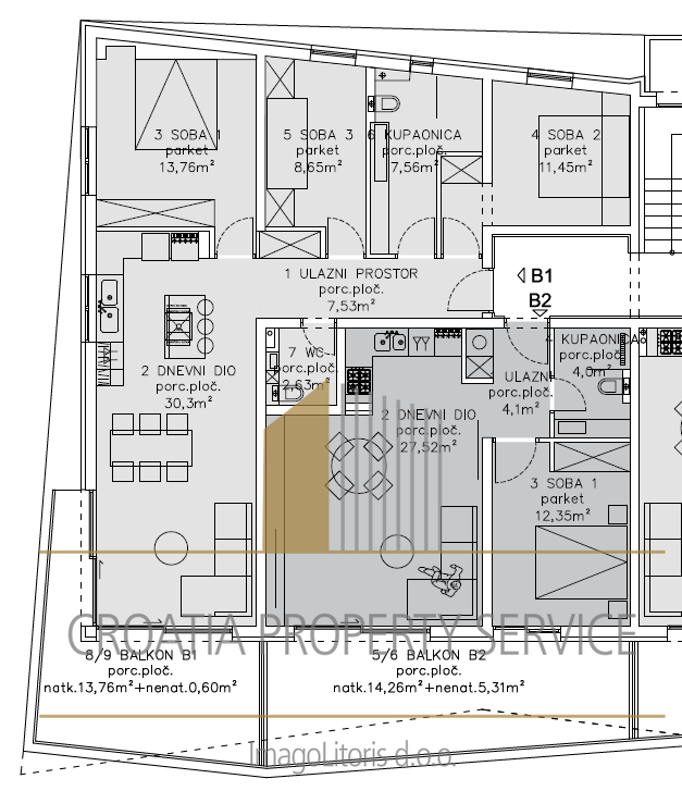
1. nadstropje
B1: 86,45 m2 neto, 3 spalni prostori, kopalnica, wc, balkon. Cena: 390.000 €
B3: 80,13 m2 neto, 2 spalna prostora, 2 kopalnici, balkon. Cena: 320.000 €

3. nadstropje
D1, penthouse: 130,23 m2 neto, 3 spalni prostori, 3 kopalnice, terasa. Cena: 790.000 €

Osnovni podatki

  • Šifra stavbeiro-2749
  • Prodajna cena790 000 € (5 952 255 kn)
  • LokacijaRogoznica
  • Kvadratura130,00 m2
  • Tip stanovanja3S+DB
  • Energetski razredV gradnji
  • Število spalnic3
  • Število kopalnic3
  • Nadstropje3
  • Število etažEnoetažni
  • Nadstropij v stavbi3
  • Vrsta stavbeStanovanjski
  • Leto izdelave2026
  • Oddaljenost od morja750 m
  • Oddaljenost od centra750 m
  • Število parkirnih mest1

Različne lastnosti

  • Terasa
  • Shramba
  • Dvigalo
  • Protivlomna vrata
  • Balkon
  • Opremljen vrt
  • Pogled na morje

Ogrevanje

  • Talno gretje
  • Klima

Inštalacije

  • Elektrika
  • Voda
  • Kanalizacija

Stanje stavbe

  • Novogradnja

V bližini

  • Jjavna plaža
  • Center poravnava

Dovoljenja

  • Gradbena dovoljenja
  • Vlasnički list

Nepremičnina na zemljevidu

Kontakt zastopnika

Tatjana Renić

Ta spletna stran zapusti "piškotke" v računalniku za namene navigacije vsebine in anonimne zbirke statističnih podatkov o uporabi. Z uporabo te spletne strani potrjujete, da se strinjate s tem.