Stan 2S+DB za prodaju, Trogir, Čiovo, 850 000 €

Luksuzni stan s vrtom i bazenom prvi red uz plažu – Seget Donji!

Ovaj luksuzni stan smješten je na izvanrednoj lokaciji, na samoj obali, u prvom redu do mora, uz predivnu plažu.

Smješten u prizemlju moderne i vrhunski projektirane zgrade u Segetu Donjem, nalazi se na svega 15 minuta vožnje od međunarodne zračne luke Split.

U neposrednoj blizini proteže se šetnica uz more koja vodi do povijesnog grada Trogira, bisera pod zaštitom UNESCO-a, udaljenog tek laganom 15-minutnom šetnjom.

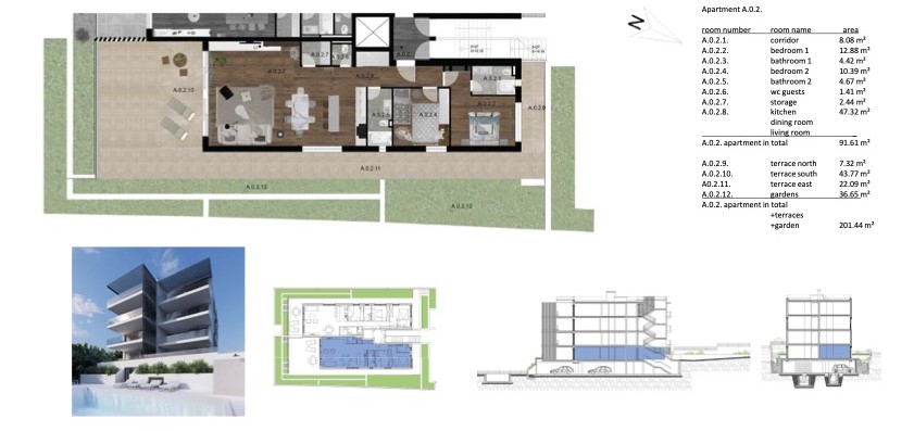
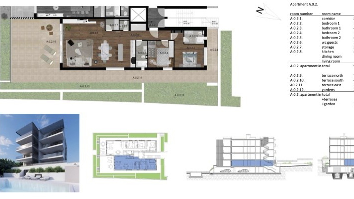
Ukupne površine od 167,21 m2 (uključujući terase i vrt), stan je osmišljen za maksimalnu udobnost i sofisticiran stil života.

Sastoji se od dvije prostrane spavaće sobe, dviju elegantno uređenih kupaonica, dodatnog toaleta za goste, spremišta, te prozračnog dnevnog prostora otvorenog koncepta koji objedinjuje kuhinju, blagovaonicu i dnevni boravak.

Posebnu čar ovom prostoru daju privatni uređeni vrt s bazenom te dvije prostrane terase s kojih se pruža spektakularan pogled na more i otok Čiovo — savršeno mjesto za opuštanje i uživanje u zalascima sunca.

Stan se prodaje po principu „ključ u ruke“, potpuno namješten i spreman za useljenje, s pažljivo odabranim detaljima koji zadovoljavaju najviše standarde kvalitete.

Glavne značajke:
• Impresivne staklene stijene od poda do stropa koje osiguravaju obilje prirodnog svjetla
• Elegantne vanjske horizontalne žaluzine
• Moderne staklene ograde
• Vrhunski materijali i besprijekorne završne obrade
• Kvalitetne podne i sanitarne obloge
• Prostrane terase s otvorenim pogledom na more
• Dizalo koje povezuje sve etaže
• Privatni bazen u vrtu

Dodatna pogodnost uključuje mogućnost kupnje parkirnog mjesta (15.000 €) te spremišta (2.000 €).







Više informacija kao i razgledavanje nekretnine s agentom moguće je isključivo uz potpisani Ugovor o posredovanju koji je u skladu sa Zakonom o zaštiti podataka i Zakonom o posredovanju u prometu nekretnina.
Agencijska provizija: 3% + pdv

Osnovne informacije

  • Šifra objektairo-2869
  • Prodajna cijena850 000 € (6 404 325 kn)
  • LokacijaTrogir, Čiovo
  • Kvadratura167,00 m2
  • Tip stana2S+DB
  • Energetski razredU izradi
  • Broj spavaćih soba2
  • Broj kupaonica2
  • Kat opisnoPrizemlje
  • Broj etažaJednoetažni
  • Ukupno katova3
  • Vrsta zgradeStambena
  • Udaljenost od mora5 m

Razna svojstva

  • Lift
  • Vrt
  • Terasa
  • Bazen
  • Uređena okućnica
  • Roštilj
  • Pogled na more

Grijanje

  • Podno grijanje
  • Klima

Instalacije

  • Struja
  • DSL/Internet

Stanje zgrade

  • Novogradnja

Parking

  • Garaža

Opcije najma

  • Klimatizirano

U blizini

  • Trgovina
  • Javna plaža
  • Aerodrom
  • Marina
  • Restoran
  • Centar naselja

Dokumentacija

  • Građevinska dozvola
  • Vlasnički list

Prikaz nekretnine na karti

Kontaktiraj agenta

Saša Šourek

Ova stranica ostavlja "kolačiće" na Vašem kompjutoru za potrebe navigacije i anonimizirane statistike pristupa. Korištenjem ove stranice prihvaćate i potvrđujete ove "kolačiće".