Stan 1S za prodaju, Otok Brač, 148 800 €

Luksuzni studio apartman s pogledom na more na otoku Braču!

Smješten u slikovitom selu Murvica, na jednom od najljepših hrvatskih otoka – Braču, ovaj jedinstveni apartman nalazi se u pažljivo obnovljenoj kamenoj kući koja savršeno spaja autentični mediteranski šarm i suvremeni luksuz.

Okružena netaknutom prirodom i kristalno čistim morem, nekretnina nudi spektakularan pogled na azurni horizont i jednu od najljepših plaža na otoku.

Iako pruža potpuni mir i privatnost, udaljena je svega 3 km od živopisnog Bola i svjetski poznate plaže Zlatni rat – simbola vrhunske mediteranske ljepote.

Riječ je o staroj kamenoj kući koja je u potpunosti i vrhunski renovirana 2023. godine, uz očuvanje izvornih arhitektonskih detalja i korištenje visokokvalitetnih materijala.

Objekt se sastoji od 9 samostalnih apartmanskih jedinica, osmišljenih s naglaskom na funkcionalnost, estetiku i dugoročnu vrijednost.

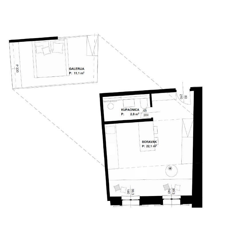
Apartman AP4 smješten je na prvom katu i ima ukupnu stambenu površinu od 18.6 m2.

Ovaj elegantno uređen, klimatizirani apartman sastoji se od prostranog dnevnog boravka s kuhinjom i spavaćim dijelom i moderno uređene kupaonice.

Posebnu autentičnost prostoru daju izvorni kameni zidovi koji stvaraju jedinstvenu atmosferu mediteranskog luksuza.

Svi apartmani u kući su potpuno opremljeni i spremni za korištenje tijekom cijele godine, bilo za osobni boravak ili turistički najam.

Na raspolaganju je i zajednički, pažljivo uređen vrt koji uključuje potpuno opremljenu vanjsku kuhinju, jacuzzi, finsku saunu s pogledom na more, vanjski tuš, pergolu s blagovaonicom, lounge zonu za opuštanje te prostor za vježbanje.

Apartmani su pravno odvojeni te se mogu kupiti pojedinačno ili zajedno kao iznimno atraktivna investicijska prilika. Objekt već posluje s izvrsnim rezultatima i ostvaruje visoku popunjenost tijekom ljetne sezone.

Javno parkiralište nalazi se u neposrednoj blizini objekta.


Apartmani raspoloživi za prodaju:

AP1: 34,1 m2, Cijena: 255 750 €.
AP2: 37.8 m2, Cijena: 245 700 €. - REZERVIRAN
AP4: 18.6 m2, Cijena: 148 800 €.
AP6: 20.8 m2, Cijena: 166 400 €. - REZERVIRAN
AP7: 20.3 m2, Cijena: 162 400 €.
AP8: 20.1 m2, Cijena: 168 800 €.
AP9: 24.9 m2, Cijena: 252 000 €.



Više informacija o nekretnini, kao i razgledavanje nekretnine s agentom, moguće je isključivo uz potpisanu Listu razgleda, u skladu sa Zakonom o zaštiti osobnih podataka i Zakonom o posredovanju u prometu nekretnina.
Agencijska provizija 3% + PDV.

Osnovne informacije

  • Šifra objektairo-2848
  • Prodajna cijena148 800 € (1 121 134 kn)
  • LokacijaOtok Brač
  • Kvadratura19,00 m2
  • Tip stana1S
  • Energetski razredC
  • Broj soba1
  • Broj kupaonica1
  • Kat1
  • Broj etažaJednoetažni
  • Vrsta zgradeKuća
  • Godina renovacije2023
  • Udaljenost od mora500 m

Razna svojstva

  • Terasa
  • Vrt
  • Ljetna kuhinja
  • Uređena okućnica
  • Sauna
  • Roštilj
  • Pogled na more

Grijanje

  • Klima
  • Podno grijanje

Instalacije

  • Struja
  • Voda
  • Kanalizacija

Stanje zgrade

  • Preuređeno

U blizini

  • Javna plaža

Dokumentacija

  • Građevinska dozvola
  • Uporabna dozvola
  • Vlasnički list

Prikaz nekretnine na karti

Kontaktiraj agenta

Saša Šourek

Ova stranica ostavlja "kolačiće" na Vašem kompjutoru za potrebe navigacije i anonimizirane statistike pristupa. Korištenjem ove stranice prihvaćate i potvrđujete ove "kolačiće".