Stan 1S+DB za prodaju, Split, 230 000 €

Luksuzni stan s vrtom u modernoj novogradnji 800 m od plaže - Kaštel Kambelovac!

Luksuzna novogradnja u Kaštel Kambelovcu, samo 800 m od mora, s i izvrsnom prometnom povezanošću između Splita i Trogira.

Ovaj atraktivan stambeni projekt nudi savršen spoj moderne arhitekture, mirne lokacije i blizine mora.

Prekrasne plaže, restorani i svi potrebni sadržaji za ugodan i kvalitetan život nalaze se u neposrednoj blizini, dok je Zračna luka Split udaljena svega 8 km.

Projekt se sastoji od dvije suvremene stambene zgrade, svaka s ukupno sedam pažljivo osmišljenih stanova.

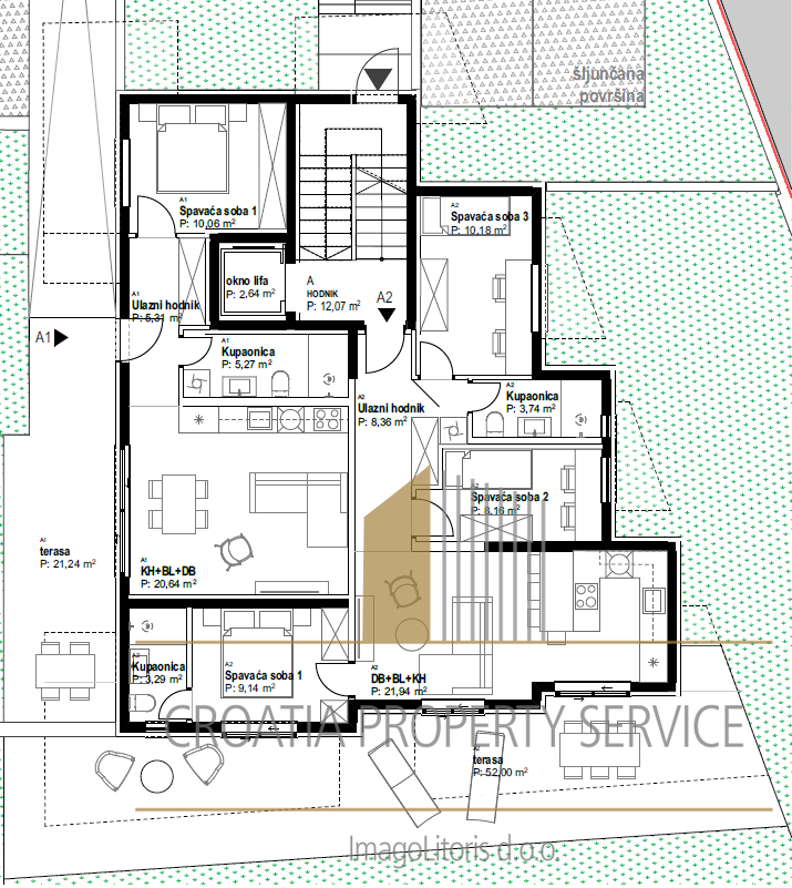
Stan A1 nalazi se u prizemlju sjeverne zgrade te ima ukupnu stambenu površinu od 52 m2. Funkcionalan i moderno koncipiran tlocrt uključuje ulazni hodnik, kupaonicu, spavaću sobu, kuhinju s blagovaonicom te dnevni boravak s izlazom na terasu i vrt, idealne za opuštanje i druženje.

Stanu pripada jedno garažno parkirno mjesto i ostava, koji su uključeni u cijenu.

Projekt je osmišljen prema visokim standardima suvremene gradnje, s naglaskom na otvorene i povezane prostore, obilje prirodne svjetlosti te ugodan ambijent koji pruža osjećaj doma i privatnosti.

Stanovi raspoloživi za prodaju:

A1, prizemlje: 52 m2; ulazni hodnik, kupaonica, spavaća soba, kuhinja s blagovaonicom i dnevnim boravkom, terasa, vrt, garažno parking mjesto, ostava. Cijena: 230.000 €.

A2, prizemlje: 91 m2; ulazni hodnik, 2 kupaonice, 3 spavaće sobe, kuhinja s blagovaonicom i dnevnim boravkom, terasa, vrt, garažno parking mjesto, ostava. Cijena: 380.000 €.

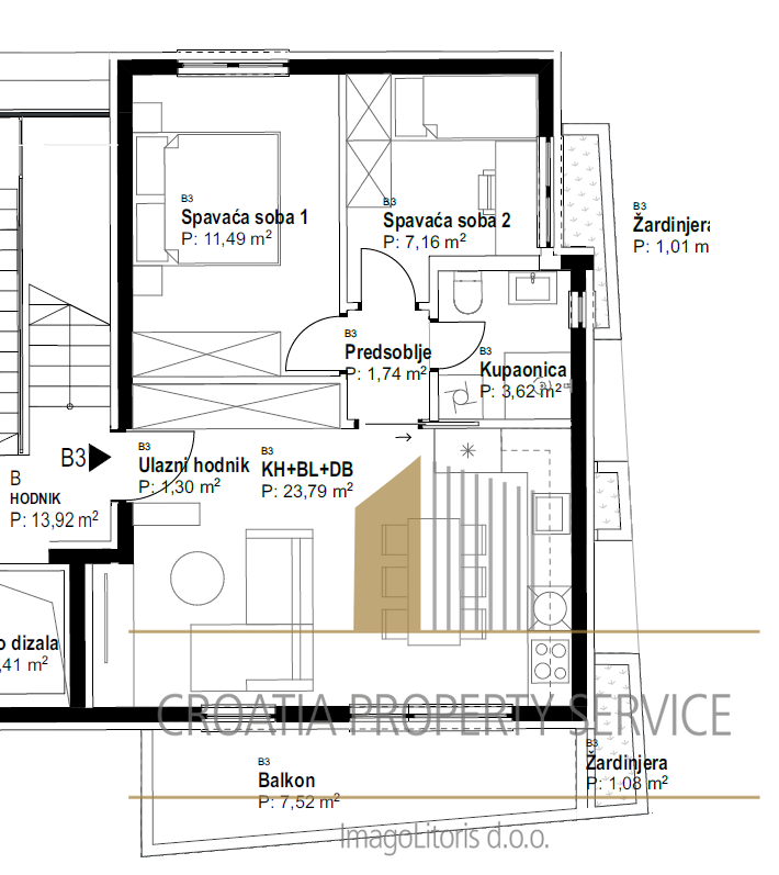
B3, prvi kat, južna zgrada: 51 m2; ulazni hodnik, dvije spavaće sobe, kupaonica, predsoblje, kuhinja s blagovaonicom i dnevnim boravkom, balkon, 1 garažno mjesto, ostava. Cijena: 235 000 €.



Više informacija kao i razgledavanje nekretnine s agentom moguće je isključivo uz potpisani Ugovor o posredovanju koji je u skladu sa Zakonom o zaštiti podataka i Zakonom o posredovanju u prometu nekretnina.
Agencijska provizija: 3% + pdv

Osnovne informacije

  • Šifra objektairo-2776
  • Prodajna cijena230 000 € (1 732 935 kn)
  • LokacijaSplit
  • Kvadratura52,00 m2
  • Tip stana1S+DB
  • Energetski razredU izradi
  • Broj spavaćih soba1
  • Broj kupaonica1
  • Kat opisnoPrizemlje
  • Broj etažaJednoetažni
  • Vrsta zgradeStambena
  • Godina izgradnje2026
  • Udaljenost od mora800 m
  • Udaljenost od centra700 m
  • Br. parkirnih mjesta1

Razna svojstva

  • Terasa
  • Vrt
  • Pogled na more

Instalacije

  • Struja
  • Voda
  • Kanalizacija

Stanje zgrade

  • Novogradnja

U blizini

  • Javna plaža
  • Centar naselja
  • Restoran

Dokumentacija

  • Građevinska dozvola
  • Uporabna dozvola
  • Vlasnički list

Prikaz nekretnine na karti

Kontaktiraj agenta

Tatjana Renić

Ova stranica ostavlja "kolačiće" na Vašem kompjutoru za potrebe navigacije i anonimizirane statistike pristupa. Korištenjem ove stranice prihvaćate i potvrđujete ove "kolačiće".