Stan 2S+DB za prodaju, Zadar, 230 000 €

Dvosoban stan u modernoj novogradnji 300 m od plaže – Povljana, otok Pag!

Na prodaju je elegantan stan smješten u mirnom i šarmantnom mjestu Povljana, na južnoj strani otoka Paga, svega 300 metara od plaže Dubrovnik.

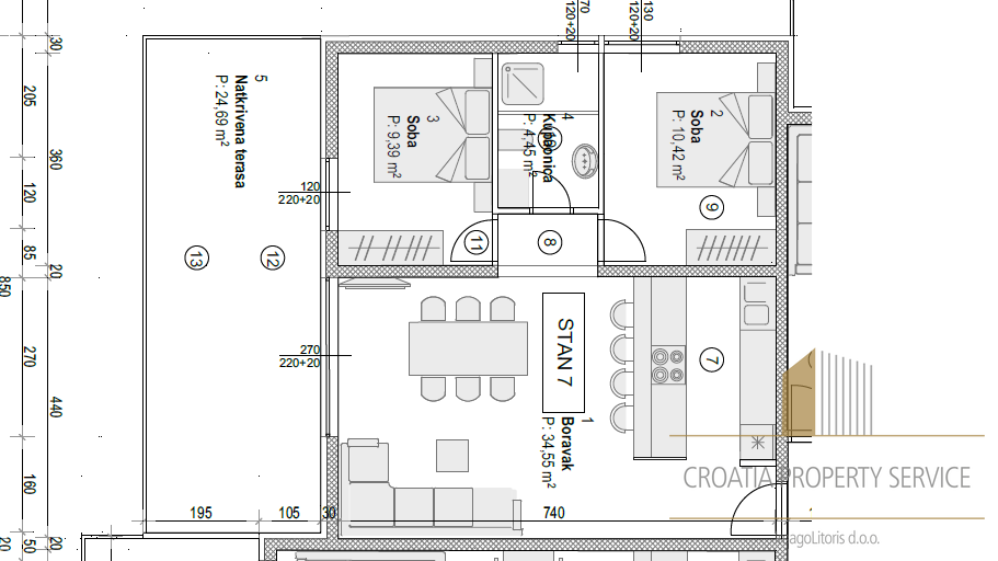
Stan S7 nalazi se na prvom katu moderne zgrade s ukupno 15 stambenih jedinica.

Ukupne površine 83.50 m2, sastoji se od dvije spavaće sobe, kupaonice, otvorenog dnevnog boravka s kuhinjom i blagovaonicom te natkrivene terase koja pruža ugodan prostor za opuštanje.

U cijenu je uključeno jedno parkirno mjesto ispred zgrade.

Izvrsna prilika za ulaganje – stan koji spaja kvalitetu gradnje, odličnu lokaciju i visok potencijal povrata kroz turistički najam.

Stanovi raspoloživi za prodaju:

1. KAT
S6: 53.92 m2, 1 spavaća soba, terasa, parking mjesto. Cijena: 165 000 €.
S7: 83.50 m2, 2 spavaće sobe, terasa, parking mjesto Cijena: 230 000 €.
S8: 60.93 m2, 1 spavaća soba, terasa, parking mjesto. Cijena: 175 000 €.
S9: 61.08 m2, 1 spavaća soba, terasa, parking mjesto. Cijena: 175 000 €.
S10: 74.15 m2, 2 spavaće sobe, terasa, parking mjesto. Cijena: 220 000 €.


2. KAT
S11: 53.92 m2, 1 spavaća soba, terasa, parking mjesto. Cijena: 165 000 €.
S13: 60.93 m2, 1 spavaća soba, terasa, parking mjesto. Cijena: 175 000 €.
S14: 61.08 m2, 1 spavaća soba, terasa, parking mjesto. Cijena: 175 000 €.
S15: 74.15 m2, 2 spavaće sobe, terasa, parking mjesto. Cijena: 220 000 €.



Više informacija o nekretnini, kao i razgledavanje nekretnine s agentom, moguće je isključivo uz potpisanu Listu razgleda, u skladu sa Zakonom o zaštiti osobnih podataka i Zakonom o posredovanju u prometu nekretnina.
Agencijska provizija 3% + PDV.

Osnovne informacije

  • Šifra objektairo-2727
  • Prodajna cijena230 000 € (1 732 935 kn)
  • LokacijaZadar
  • Kvadratura83,00 m2
  • Tip stana2S+DB
  • Energetski razredU izradi
  • Broj spavaćih soba1
  • Broj kupaonica1
  • Kat1
  • Broj etažaJednoetažni
  • Ukupno katova2
  • Vrsta zgradeStambena
  • Udaljenost od mora400 m
  • Br. parkirnih mjesta1

Razna svojstva

  • Terasa
  • Balkon

Grijanje

  • Klima

Instalacije

  • Struja
  • Voda
  • Kanalizacija

Stanje zgrade

  • Novogradnja

U blizini

  • Javna plaža

Dokumentacija

  • Građevinska dozvola
  • Vlasnički list

Prikaz nekretnine na karti

Kontaktiraj agenta

Tatjana Renić

Ova stranica ostavlja "kolačiće" na Vašem kompjutoru za potrebe navigacije i anonimizirane statistike pristupa. Korištenjem ove stranice prihvaćate i potvrđujete ove "kolačiće".