Apartment 4 rooms for sale, Split, 380 000 €

Luxury three-bedroom apartment with garden in a new building with sea view - Kaštel Kambelovac!

Luxury new construction in Kaštel Kambelovac, only 800 m from the sea, with excellent transport connections between Split and Trogir.

This attractive residential project offers a perfect blend of modern architecture, a peaceful location, and proximity to the sea.

Beautiful beaches, restaurants, and all necessary amenities for a comfortable and quality life are in the immediate vicinity, while Split Airport is only 8 km away.

The project consists of two contemporary residential buildings, each with a total of seven carefully designed apartments.

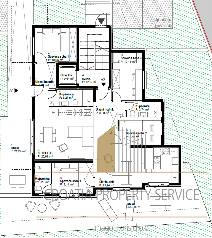
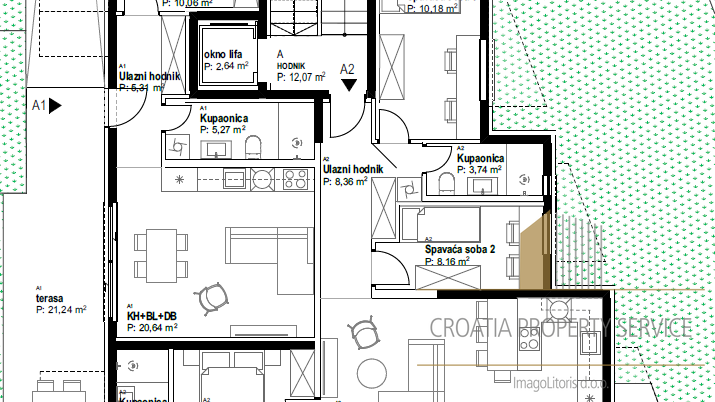
Apartment A2 is located on the ground floor of the northern building, with a total living area of 91 m². The spacious and functionally designed floor plan offers a perfect combination of comfort and modern living.

The apartment consists of an entrance hallway, three bedrooms, two bathrooms, and an open space kitchen and dining area elegantly connected to the living room. The living room has access to the terrace, while one of the bedrooms offers the luxury of a private bathroom and direct access to a landscaped garden, creating an ideal corner for privacy and relaxation.

The apartment includes one garage parking space and a storage room, which are included in the price.

The project is designed according to high standards of modern construction, emphasizing open and connected spaces, plenty of natural light, and a pleasant ambiance that provides a feeling of home and privacy.

Apartments available for sale:

A1, ground floor: 52 m2; entrance hallway, bathroom, bedroom, kitchen with dining and living room, terrace, garden, garage parking space, storage room. Price: 230,000 €.

A2, ground floor: 91 m2; entrance hallway, 2 bathrooms, 3 bedrooms, kitchen with dining and living room, terrace, garden, garage parking space, storage room. Price: 380,000 €.

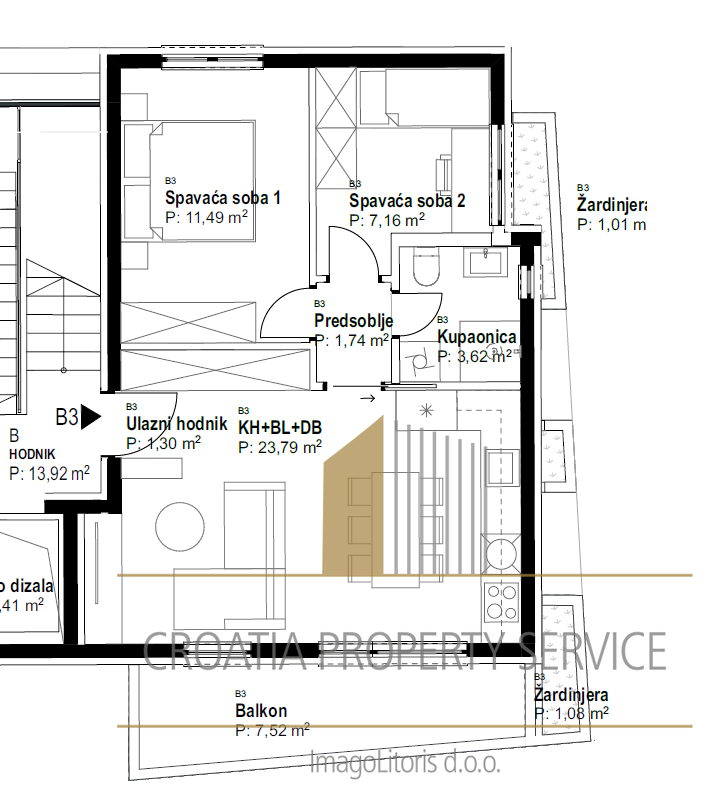
B3, first floor, southern building: 51 m2; entrance hallway, two bedrooms, bathroom, anteroom, kitchen with dining and living room, balcony, 1 garage space, storage room. Price: 235,000 €.



To receive additional information and schedule a property viewing with our agent, you must first sign an Agency Agreement. This agreement adheres to data protection and real estate mediation laws.
Agency commission: 3% + VAT

Basic information

  • Custom IDiro-2777
  • Price380 000 € (2 863 110 kn)
  • LocationSplit
  • Area91,00 m2
  • Apartment type4 rooms
  • Energy ClassPending
  • Bedroom Count3
  • Bathroom Count2
  • Floor DescriptiveGround
  • Floor LevelsStorey
  • Building ClassResidential
  • Year Built2026
  • Distance from the Sea800 m
  • Distance from the Town Center700 m
  • Parking Spaces1

Various Features

  • Terrace
  • Garden
  • Sea View

Heating

  • Air Conditioning

Utilities

  • Electricity
  • Water
  • Sewer

Building Condition

  • New

In Vicinity Of

  • Public Beach
  • Center of town
  • Restaurant

Permits and documentation

  • Building Permit
  • Use Permit
  • Ownership certificate

Property location

Contact this agent

Tatjana Renić

This website is leaving "cookies" on your computer for the purpose of content navigation and anonymized usage statistics collection. By using this website you confirm that you agree with this.