Wohnung 3-Z+WZ zu verkaufen, Zadar, 559 900 €

Luxuriöse Dreizimmerwohnung erste Meereslinie – exklusives Angebot in Sukošan!

Luxuriöse Apartments in einem neuen modernen Komplex an Top-Lage in Sukošan!

Sukošan, bekannt für seine charmante Atmosphäre, bietet die perfekte Balance zwischen entspanntem Leben am Meer und der Nähe zu allen notwendigen Einrichtungen. Neben seiner Beliebtheit als Touristenziel ist es bekannt für seinen Yachthafen, der einer der größten an der Adria ist und zahlreiche Nautiker aus aller Welt anzieht.

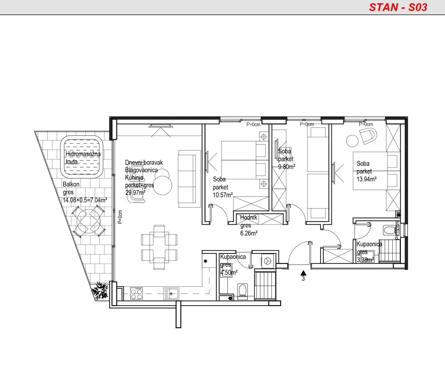
Die geräumige Wohnung im ersten Stock bietet 88 m2 reinen Luxus. Die Wohnung verfügt über zwei Badezimmer, drei Schlafzimmer, ein Wohnzimmer mit Küche und Essbereich sowie Zugang zum Balkon.

Zur Wohnung gehört auch ein Außenstellplatz.

Im Komplex trägt ein Gemeinschaftspool zum Gefühl von Luxus und Entspannung bei, während ein Aufzug im Gebäude für Komfort sorgt.

Die Bauqualität ist unbestritten, mit Betonwänden, Ziegel-Thermoblock und 10 cm Wärmedämmung an der Fassade. Die Böden kombinieren Fliesen und Parkett, die Fenster sind aus PVC mit dreifach Verglasung, elektrischen Rollläden und Insektenschutzgittern ausgestattet. Für Komfort sorgen Klimaanlagen in den Schlafzimmern und im Wohnzimmer sowie eine Fußbodenheizung in den Badezimmern.

Der Investor dieses Wohnkomplexes ist ein Unternehmen im Mehrwertsteuersystem, daher zahlt der Käufer beim Kauf keine Grunderwerbsteuer.



Um weitere Informationen zu erhalten und einen Besichtigungstermin mit unserem Makler zu vereinbaren, müssen Sie zunächst einen Maklervertrag unterzeichnen. Dieser Vertrag entspricht den Datenschutzbestimmungen und dem Immobilienkaufvertrag.
Maklerprovision: 3% + MwSt.

Grundlegende Informationen

  • Objekt-Kennnummeriro-2047
  • Verkaufspreis559 900 € (4 218 567 kn)
  • Standort Zadar
  • Fläche88,00 m2
  • Wohnungstyp3-Z+WZ
  • EnergieeffizienzklasseA+
  • Anzahl der Schlafzimmer3
  • Anzahl der Badezimmer2
  • Geschoss1
  • Anzahl der StockwerkeEinstöckig
  • Geschosse insgesamt2
  • GebäudeartWohngebäude
  • Baujahr2026
  • Entfernung vom Meer50 m
  • Entfernung vom Zentrum1 800 m
  • Anzahl der Parkplätze1

Sonstige Eigenschaften

  • Aufzug
  • Garten
  • Balkon
  • Loggia
  • Terasse
  • Videoüberwachung
  • Sicherheitstür
  • Barrierefrei
  • Swimmingpool
  • Letzte Etage
  • Gepflegter Garten
  • Meerblick

Heizung

  • Bodenheizung
  • Klimaanlage

Installationen

  • Wasser
  • Strom

Zustand des Gebäudes

  • Neubau

In der Nähe

  • Öffentlicher Strand
  • Restaurant
  • Zentrum der Siedlung
  • Zentrum der Siedlung

Dokumentation

  • Baugenehmigung
  • Nutzungsgenehmigung
  • Eigentümerliste

Standort der Immobilie

Kontaktieren Sie diesen Agenten

Tatjana Renić

Diese Website hinterlässt "Cookies" auf Ihrem Computer zum Zweck der Inhaltsnavigation und anonymisierten Nutzungsstatistiken. Durch die Nutzung dieser Website bestätigen Sie, dass Sie dem zustimmen.