Wohnung 2-Z+WZ zu verkaufen, Makarska, 218 000 €

Neue Zweizimmerwohnung mit Meerblick in Makarska!

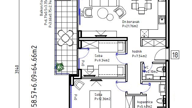
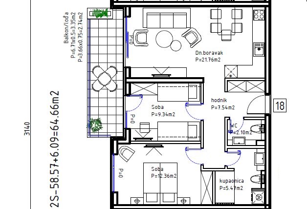
In einem modern gestalteten Wohngebäude mit Aufzug, nur 720 Meter vom Meer entfernt, wird eine Zweizimmerwohnung mit einer Fläche von 65 m2 angeboten.

Die Wohnung besteht aus einem geräumigen Wohnzimmer mit Küche und Essbereich, mit Zugang zur südwestlichen Loggia und einem Balkon mit einer Gesamtfläche von 10 m2, von dem aus ein wunderschöner, ungestörter Meerblick geboten wird, zwei Schlafzimmern, einem Badezimmer und einer separaten Toilette.

Beim Bau werden hochwertige Materialien und moderne Ausstattung verwendet – von der Wärmedämmfassade und Sicherheitstür über elegante Innentüren und Glasgeländer auf den Balkonen bis hin zu luxuriös ausgestatteten Badezimmern mit begehbaren Duschen und erstklassiger Keramik.

Zur Wohnung gehört ein Außenstellplatz (Preis 10.000 EUR).

Die Fertigstellung des Baus wird bis Ende 2026 erwartet.

Dies ist eine ideale Gelegenheit für alle, die eine Kombination aus Komfort, Eleganz und fantastischem Ausblick im Herzen von Makarska suchen.



Weitere Informationen über die Immobilie sowie die Besichtigung der Immobilie mit einem Makler sind ausschließlich nach Unterzeichnung der Besichtigungsliste möglich, in Übereinstimmung mit dem geltenden Datenschutzgesetz und dem Gesetz über die Immobilienvermittlung.
Agenturprovision: 3 % + MwSt



Grundlegende Informationen

  • Objekt-KennnummerFIL-120
  • Verkaufspreis218 000 € (1 642 521 kn)
  • Standort Makarska
  • Fläche65,00 m2
  • Wohnungstyp2-Z+WZ
  • EnergieeffizienzklasseIn Vorbereitung
  • Anzahl der Schlafzimmer2
  • Anzahl der Badezimmer1
  • Geschoss1
  • Anzahl der StockwerkeEinstöckig
  • GebäudeartWohngebäude
  • Baujahr2026
  • Entfernung vom Meer720 m

Sonstige Eigenschaften

  • Loggia
  • Balkon
  • Sicherheitstür
  • Aufzug
  • Meerblick

Heizung

  • Klimaanlage

Installationen

  • Strom
  • Wasser
  • Kanalisation

Zustand des Gebäudes

  • Neubau

Dokumentation

  • Baugenehmigung
  • Nutzungsgenehmigung
  • Eigentümerliste

Standort der Immobilie

Kontaktieren Sie diesen Agenten

Tatjana Renić

Diese Website hinterlässt "Cookies" auf Ihrem Computer zum Zweck der Inhaltsnavigation und anonymisierten Nutzungsstatistiken. Durch die Nutzung dieser Website bestätigen Sie, dass Sie dem zustimmen.