Wohnung 3-Z+WZ zu verkaufen, Rogoznica, 675 000 €

Luxuriöses Penthouse mit Meerblick 50 m vom Strand entfernt – Kalebova Luka!

Luxuriöse Wohnung an einzigartiger Lage im Herzen Dalmatiens, gelegen in der ruhigen Siedlung Kalebova Luka, nur 9 km von der wunderschönen Rogoznica entfernt. Dieser Komplex bietet einen unglaublichen Zugang zum Meer mit einem Sandstrand, der nur 50 Meter entfernt ist.

Der Flughafen Split ist 24 km entfernt.

Der Komplex besteht aus drei luxuriösen Villen mit insgesamt 11 Wohnungen. Im Preis jeder Wohnung ist das Miteigentum an 650 m2 Grundstück mit Garten, Pool und Grillbereich enthalten, was eine perfekte Umgebung zum Genießen und Entspannen mit herrlichem Meerblick bietet.

Die Wohnungen wurden nach den höchsten Standards luxuriösen Bauens errichtet, mit Fokus auf Authentizität und Atmosphäre der umliegenden Landschaft. Es wurden natürliche Materialien verwendet, darunter der charakteristische weiße Stein von Brač, der zusammen mit den eleganten Linien des Interieurs jeden Raum besonders macht.

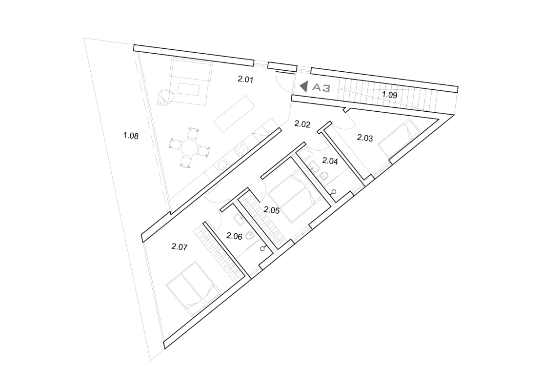
Die luxuriöse Penthouse-Wohnung A3 befindet sich im zweiten Stock der Villa A und erstreckt sich über 105,5 m2. Sie besteht aus einer geräumigen Küche mit Essbereich und Wohnzimmer mit Zugang zur großen Terrasse, drei Schlafzimmern, von denen eines ebenfalls Zugang zur Terrasse hat, sowie zwei Badezimmern.
Von der Terrasse bietet sich ein herrlicher Meerblick, ideal zum Genießen sonniger Tage.

Für die Bewohner stehen zudem zusätzliche Dienstleistungen zur Verfügung, wie Parkplätze (16.000 €), ein Kellerabteil (20.000 €) sowie eine Tiefgarage (49.000 €).

Derzeit verfügbare Wohnungen:

VILLA A
A3: zweites Stockwerk, 105,5 m2, 3 Schlafzimmer, 2 Badezimmer, Terrasse. Preis: 675.000 €.

VILLA C
C2: zweites Stockwerk, 64 m2, 2 Schlafzimmer, Badezimmer, Terrasse. Preis: 408.000 €.
C3: zweites Stockwerk, 64 m2, 2 Schlafzimmer, Badezimmer, Terrasse. Preis: 405.000 €.


Nutzen Sie die Gelegenheit und sichern Sie sich Ihre luxuriöse Wohnung an einer der schönsten Destinationen an der Adria!



Weitere Informationen über die Immobilie sowie die Besichtigung der Immobilie mit einem Makler sind ausschließlich nach Unterzeichnung der Besichtigungsliste möglich, in Übereinstimmung mit dem geltenden Datenschutzgesetz und dem Gesetz über die Immobilienvermittlung.
Agenturprovision: 3 % + MwSt



Grundlegende Informationen

  • Objekt-Kennnummeriro-2410
  • Verkaufspreis675 000 € (5 085 788 kn)
  • Standort Rogoznica
  • Fläche105,00 m2
  • Wohnungstyp3-Z+WZ
  • Anzahl der Schlafzimmer3
  • Anzahl der Badezimmer2
  • Geschoss deskriptivPenthouse
  • Anzahl der StockwerkeEinstöckig
  • GebäudeartWohngebäude
  • Baujahr2025
  • Entfernung vom Meer50 m

Sonstige Eigenschaften

  • Terasse
  • Balkon
  • Satellitenfernsehen
  • Sicherheitstür
  • Gepflegter Garten
  • Letzte Etage
  • Swimmingpool
  • Grill
  • Meerblick

Heizung

  • Klimaanlage
  • Bodenheizung

Installationen

  • Strom
  • Wasser
  • Kanalisation

Zustand des Gebäudes

  • Neubau

Parkplatz

  • Garage

Mietoptionen

  • Klimatisiert
  • Satellitenfernsehen

In der Nähe

  • Öffentlicher Strand

Dokumentation

  • Baugenehmigung
  • Eigentümerliste

Standort der Immobilie

Kontaktieren Sie diesen Agenten

Tatjana Renić

Diese Website hinterlässt "Cookies" auf Ihrem Computer zum Zweck der Inhaltsnavigation und anonymisierten Nutzungsstatistiken. Durch die Nutzung dieser Website bestätigen Sie, dass Sie dem zustimmen.